Yükleniyor
  • Müşteri Destek
  • 0344 216 12 20

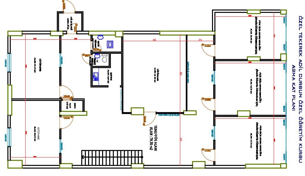
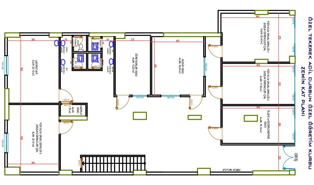
ÖZEL TEKEREK ADİL DURSUN KURS MERKEZİ

Adil Dursun Eğitim Kurumları'nın Kahramanmaraştaki ikinci şubesi olan Özel Tekerek Adil Dursun Kurs Merkezi'nin plan, proje ve yapımı tarafımızca gerçekleştirilmiştir.

Özel eğitim kurumları yönetmeliğine ve şartnamelere uygun olarak tasarlanan ve yapımı 2016 yılında yapılan Özel Tekerek Adil Dursun Kurs Merkezi

NSH Mühendislik & Mimarlık olarak eğitim alanında attığımız imzalarımızdan birisidir.

Hızlı iletisim
  • 0344 216 12 20
  • 0 532 369 20 46
  • nsh.muh.mim@gmail.com
Uzman Personel
Hızlı iletisim